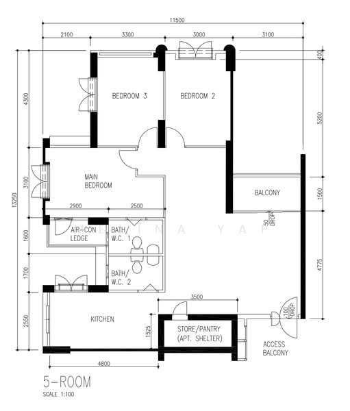
122A Sengkang East Way - 1 Units for Sale

122A Sengkang East Way
122A Sengkang East Way 541122(D19) Hougang / Punggol / Sengkang
Summary

122A Sengkang East Way

Read more
Project details
TypeHDB
Completion year1999
Tenure99-year Leasehold
No. of blocks2
No. of floors17

DeveloperHousing & Development Board (HDB)